.jpg)
Prime Industrial Land Auction – Rouses Point, NY
An excellent development opportunity in the Village of Rouses Point, New York is coming to online auction.
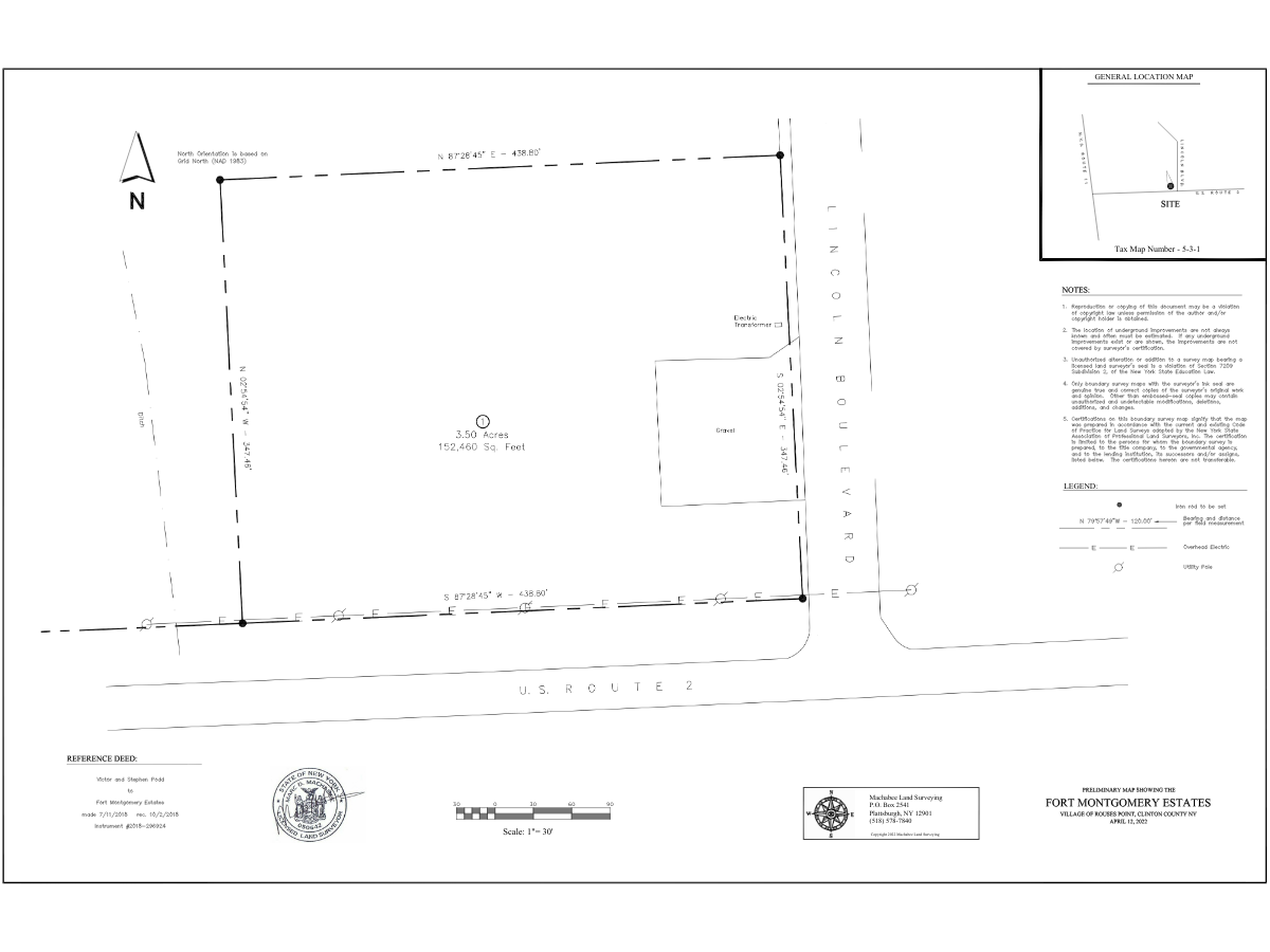
This 3.5± acre parcel offers prime industrial/commercial development potential in a strategic location near the U.S.–Canadian border, Vermont, and Interstate 87. The property is located along a major transport corridor and in close proximity to the Champlain Port of Entry and the Rouses Point–Lacolle 223 Border Crossing.
One of the most unique advantages of this site is access to some of the lowest electrical rates in the nation, making it an ideal location for manufacturing, commercial development, or business expansion.
Auction Details
📅 Bidding Opens: March 12, 2026
⏳ Bidding Begins to Close: March 26, 2026
🌐 Online bidding available
Property Highlights
• 3.5± Acres
• Approx. 438.8' x 347.46' parcel
• Zoned C5 Commercial
• Village water & sewer available
• Underground fiber optic & electric
• Up to 800 amp service available (subject to village approval)
• Located near established manufacturers and businesses
• Direct access to major transportation routes
Possible Uses
• Industrial building
• Commercial space
• Hotel or motel
• Convenience store
• Restaurant
• Bank
• Greenhouse / nursery
• Boat storage
• Professional office complex
• Franchise retail location
• Residential homes
🔗 Register and Bid Online:
quabbinvalleyauction.hibid.com
This property offers a rare opportunity to secure development land in a highly strategic North Country location with strong infrastructure and cross-border access.
Auction Disclaimer:
All property information is believed to be accurate but is not guaranteed. Announcements made on auction day take precedence over all prior statements or advertising. Prospective bidders are responsible for conducting their own due diligence. Property is sold AS IS, WHERE IS with no warranties expressed or implied.





